君庭云邸136m2現代風格丨且以安穩歲月,許你靜好生活

每天在車水馬龍的
城市里穿梭,
入眼的光影霓虹
熱情而讓人向往。
但萬家燈火,
總希望有一隅,
安放我們感性的靈魂。
攬一寸光陰,
悟一份懂得,
書一段時光,
享一份恬淡。
在現代氣息的空間里,
通過色彩、材質的互動和協調,
演繹安穩歲月里的靜美時光。
案例
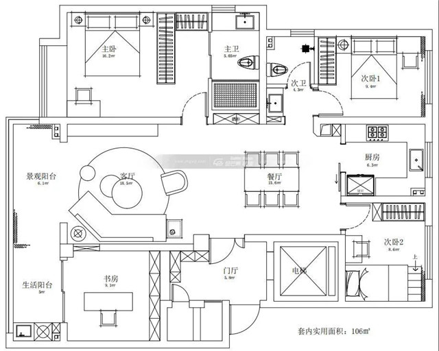
項目樓盤:君庭云邸
項目面積:136m²
項目風格:現代風格
設計師:劉元鋒

平面布置

01 客廳
摒棄過多物化的堆砌,用簡約詮釋空間里的歲月靜好和高級感。

簡潔的白墻和灰色地磚,交織出沉靜和溫柔,讓空氣的流動變得更加的自由。慵懶的沙發坐感舒適,給予身體和心靈輕柔的撫慰,渲染輕輕慢慢的時光。當橙色邂逅千鳥格,刻畫精致時光里的優雅物語。

大理石電視背景墻灰玻和木材,豐富材質的互動與碰撞,展現豐富的空間格調。開放的客餐廳設計,讓情感充分融合,讓美好充分流動。

簡約的黑色小幾打破常規,不拘泥于形式,展現高級感。
02 餐廳
溫柔細膩的白色,讓用餐變得更加精致。精美的餐具,晃動的杯影,搖曳的紅酒,不辜負生活里的美好時光。

03 書房
個性的書桌打破書房的沉悶和拘謹,思維也隨之活躍起來。簡潔的白和個性畫飾,渲染藝術氣息。木材的加入,仿佛沁入了書香氣。


04 臥室
淺灰色色調搭配,營造親切氛圍,清晨變得更清新,夜晚變得更溫柔。裝飾畫鋪陳出靈動和優雅,猶可見靜謐時光里高級感的蛛絲馬跡。

05 兒童房
線條和顏色打造滿溢的童趣,和窗外絢麗充分融匯,用所有美好的詞匯將房間填滿,明媚、純真、活潑……快樂色彩,無憂童年。




06 衛生間
石材花紋提升空間格調,灰色的高級感和簡潔感得以展現,在材質和結構的精心搭配下,空間品質得以提升。




