實景新作丨慢享時光,打造都市里的溫馨歲月
這是安居在昆明市官渡區
金茂廣場的一棟精巧的公寓。
享遇一份都市的繁華,
也不忘邂逅一份歸家的溫馨。
生活縱然忙忙碌碌,
但歸家后,
還是想做回那個舒適的自己。
夜晚燈光幽靜,
輕茗一口杯中搖晃的紅酒,
柔風過境,
帶來夏夜里專屬的清涼。

實景案例分享
項目信息:
項目地址 Project Location | 昆明 · 官渡區 金茂廣場
設計風格 Design style | 現代風格
施工單位 Builder | 幸福金芒果裝飾
房屋類型property type丨公寓
全案設計師 Designer | 張正川、朱明瑾
項目經理 project manager丨朱瑜
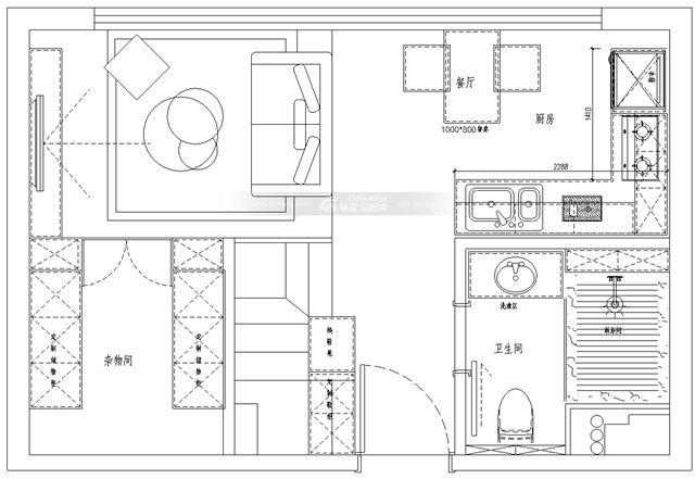
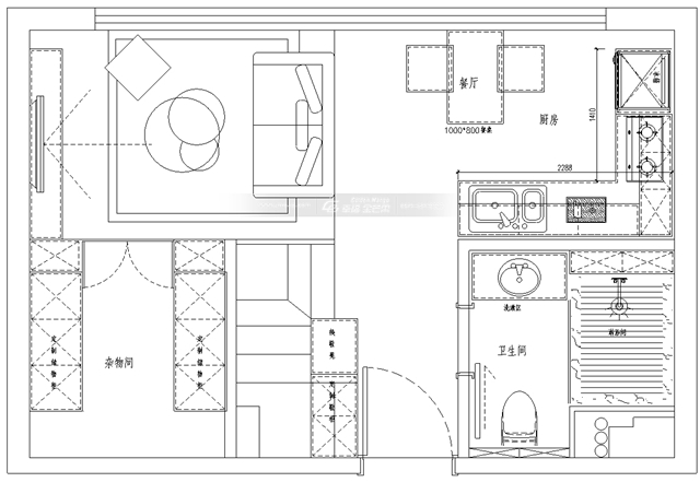
平面布置


客廳區域
公寓共有上下兩層,第二層是搭建空間,在原有的基礎上將空間可利用性變得更強。

實景

效果圖
樂于享受生活的業主朱先生,生活、工作穩定,全屋以溫暖的橘黃色和純凈的白色為主色調,從容的溫暖氣息,與朱先生的生活態度融合得恰到好處。

平穩的家居氣息,精心的細節設計讓屋子里增添了不少樂趣,熱愛生活的人也會被生活熱愛呀。

寬敞的大落地窗帶來通透的視覺感受,空間看起來更加開闊。個性的吊燈帶動起空間靈動的氛圍。

頗有韻味的家,從哪個角度看,都是美好的定格。室內品質安逸,室外美景亦不錯過。手中酒杯輕握,紅酒搖曳,朱先生喜歡品酒,好的酒藏得時間越久越香醇,好的家居格調亦是,越住越舒服。

公寓雖不大,但收納卻大有乾坤。利用搭建的空間在樓梯一側做隱形門設計,里側是雜物間加兩個定制的超大儲物柜,東西再也不怕放不下啦。美觀又實用。
玻璃扶手的設計,讓整體空間看起來更加通透。

木色與白色安靜溫暖,根據心情和季節點綴幾株綠植鮮花,身心無限放松、沉浸的家,一切都在彰顯慢節奏的松弛從容,過自己喜歡的日子,熱愛簡單的生活。


餐廚區域
一個精致的廚房,生活便多了許多的味道。廚房空間有限,量身打造的操作臺剛好放進冰箱,定制的吊柜更加節省空間。墻磚點綴的花紋讓廚房空間變得可愛起來。

朱先生喜歡養魚,邊吃飯,邊觀賞魚,生活又多了一項樂趣。

衛生間區域
衛生間做了簡單的干濕分離,保障生活功能的良好使用。做壁龕為空間提供更多的收納空間。

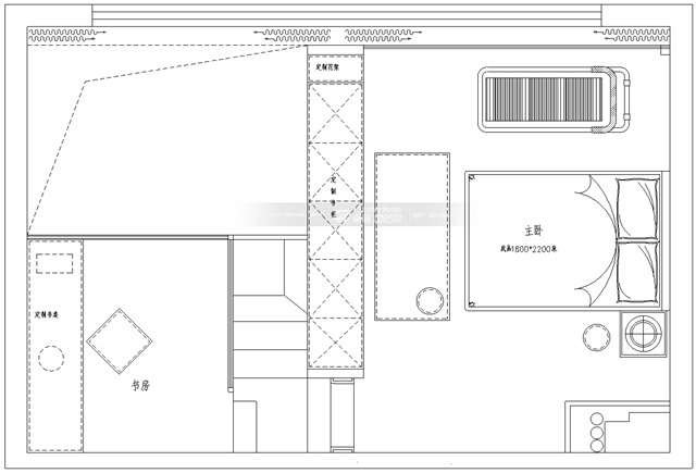
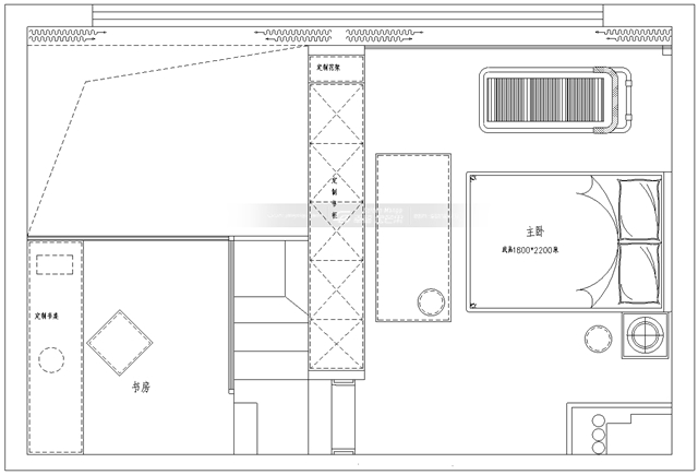
二層 書房空間
書房放了很多朱先生淘回來的小物件,喜愛的東西填滿整間屋子,彰顯小資情調,精致的氣息治愈著瑣碎的日常。

實景

效果
是書房,是工作區,也是休閑區,在書房里可以俯瞰到整個一樓的場景,空間更加通透,互動性更強。
二層 臥室空間
通完臥室的樓梯一梯兩用,一面通向書房,一面通向臥室。

除了簡單的色彩底蘊,空間的材質則以輕盈溫柔為主,不疊加過多元素,自然彰顯空間的溫柔和放松。木質的地板,暖黃的色調,蓬松的床品,柔和的燈光,自然而然展露入睡空間的愜意和安逸。


打動你的生活,往往就在一瞬間,熱烈與平靜,濃烈與淡然,快與慢的節奏自由切換,我們總會回到那個專屬我們的地方。



