案例賞析|不同需求,造就不同的家,顏值與實力并存的家這樣打造
用設計去創造生活的感動
家也可以如此生動

平日里總在車水馬龍穿行,
似乎快忘了清晨鳥語花香的愜意,
樹木在扎根,風鳥在旅行,
落葉輕輕的隨風飄落,安靜歸于樹根,
而我們,
只想在家傾聽最幸福的聲音。
案例小區:銀海泊岸
面積:135㎡
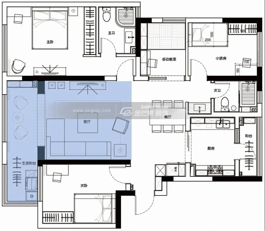
原始戶型圖

戶型優點:整體承重墻不多,便于后期設計改造;通風采光較好;各個空間的面積合理;形狀方正。
戶型缺點:左下角房間是間接性的采光和通風;餐廳位置不好規劃;廚房空間較小。
、
業主一:新中式風格
紛紛擾擾,與世無爭。
得此一屋,便生而無憾。
花落誰家,甚是好奇。
業主需求:
1、常住人口:業主夫婦,兩個孩子
2、保留生活陽臺
3、入戶歸納鞋柜
4、有公共的活動區
5、避免廚房油煙對外面的影響
6、留有客房
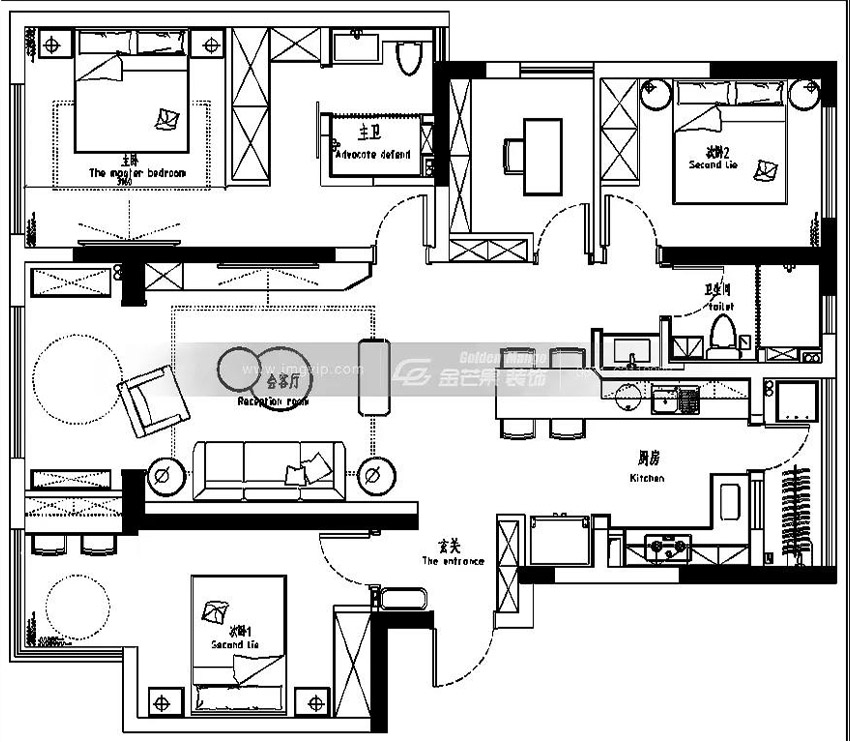
戶型圖

方案分析:
廚房把洗切和炒分離,增加空間的利用率,用推拉門隔斷,減少油煙的影響;餐廳和墻體規整布局;兒童房用實用性更強的高低床,滿足兩個孩子的使用;多功能室可作為學習、工作、活動區,也可以作為客房使用,加上次臥,完全滿足留客需求;入戶歸納鞋柜,衛生間干濕分離。
客廳

打破條條框框的束縛,
以活潑色彩給整體提升氛圍。
吊燈以華麗的身姿,暗示著不平凡。
更喜愛一角的躺椅。
餐廳

冰箱和柜體巧妙結合,
整體性更強。
入戶即寬敞明亮。
工整擺放的桌椅和餐具,
對食物甚是尊重。
臥室

沉靜的灰色和白色相搭配,
青花瓷圖案布滿地毯。
衣柜,
裝著每天不同的心情。
兒童房

高低床實用美觀。
來來去去的飛機,
是孩子的夢想,是孩子暢想世界的源頭。
小黃人和帳篷,是兒時玩耍的伙伴。
業主二:現代風格
外面燈火酒綠,
唯獨我屋輕奢靜謐。
業主需求:
1、常住人口:業主夫婦,一個小孩,一位老人
2、無需預留客房
3、入戶歸納鞋柜
4、開放式廚房,餐廚一體
5、需要獨立的辦公區
6、主臥有衣帽間
7、兒童房有母親和孩子共同學習區域
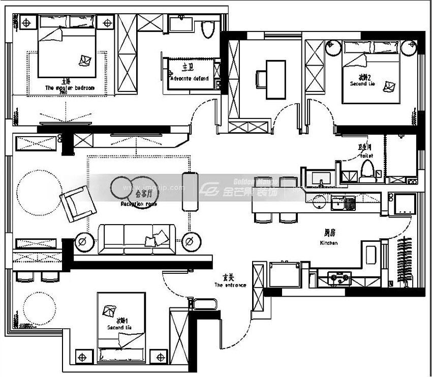
戶型圖

方案分析:
戶型相同,業主需求不同,設計師結合業主需求給出不同于業主一的方案;
1、開放式廚房和餐廚一體的設計,讓廚房有很好的使用空間;
2、隔斷休閑陽臺,給兒童房足夠的學習空間,增加采光和通風;
3、主臥規劃衣帽間;
4、不留客房,次臥供老人使用;
5、規劃有獨立的辦公區。
客廳


隱藏式射燈和燈帶舒展空間視覺。
線條元素靈活運用,極具張力。


卡其色和米白色相間,
宣誓的不僅僅是輕奢,也是優雅。
參差不齊的金屬線條,
不覺間和藝術擺件成為最好的伙伴。
廚房

紋理豐富的大理石布滿廚房,
烹飪也能有這般體驗。
啞光金屬面的冰箱,冷若冰霜,
只為提供新鮮的食材。
餐廳

雅致灰的地磚讓沉穩和奢華齊頭并進。
粉紅色的椅子正是浪漫、溫馨的始終。
餐桌和廚房相接,
實用和美觀,
這正是設計的魅力。
休閑陽臺

草草木木,
皆為清晨、傍晚之見證者。
厭倦了冰冷的混泥土,
更喜愛這一隅芳草清新。
這里無論是看一本書,
還是聽一首曲,
亦或偷一下懶無疑都是最好的。
不同需求,不同設計,不同家庭;
為您打造,
不同方案,不同風格,不同溫度;
方案多種多樣,家只有一個,選擇只有一個;
金芒果就是最好的選擇。


