現代自然風丨銀海泊岸-光影里的那段記憶,和兒時有關
夢現
夜色如水,夜風微涼
抬起頭,墨藍的天幕上繁星點點,
低下頭,看見了你眼里釀酒的月亮。
微亮的月光映照出天真的面龐,
夜風送來蟲鳴的歌唱,
以及樹果的清香。
翹著腳丫,
微風吹動淺草撫過面龐,癢癢的,
約定好要一起慢慢長大。

夢回
一陣擾人的鈴聲,
將夢境中的人拉回現實,
時鐘指向7點,
昨晚睡得似乎不是很安穩。
拉開窗簾,喧鬧的都市已經蘇醒,
洗漱好,化好精致的妝容,
將自己融入到滾滾的車流當中,
又要開始一天忙碌的工作了。
兒時的記憶總是最純凈的那一塊,每每觸及,總引起無限流連和遐想。但時光總是向前的,沒有人會一直長不大,過去的美好,未來的期許,都將融入千滋百味的生活,待我們去細細品味。將兒時美好的記憶,融入到現代家居當中,出門是繁華盛景,前途可期,入門是歲月靜好,星河燦爛。

今天要分享的現代自然風的案例,便和一段兒時記憶有關。干練獨立的女業主是一位律師,平時工作壓力大,覺得自然純粹、淳樸的東西才能讓自己更放松,想要通過家居裝飾,從新找回兒時無憂無慮的純粹時光。
案例丨現代自然風
建筑小區:銀海泊岸
建筑面積:110m²
設計師:徐國兵
設計是將一切美好事物的完美呈現,家是所有人為之努力最后回歸的終點。
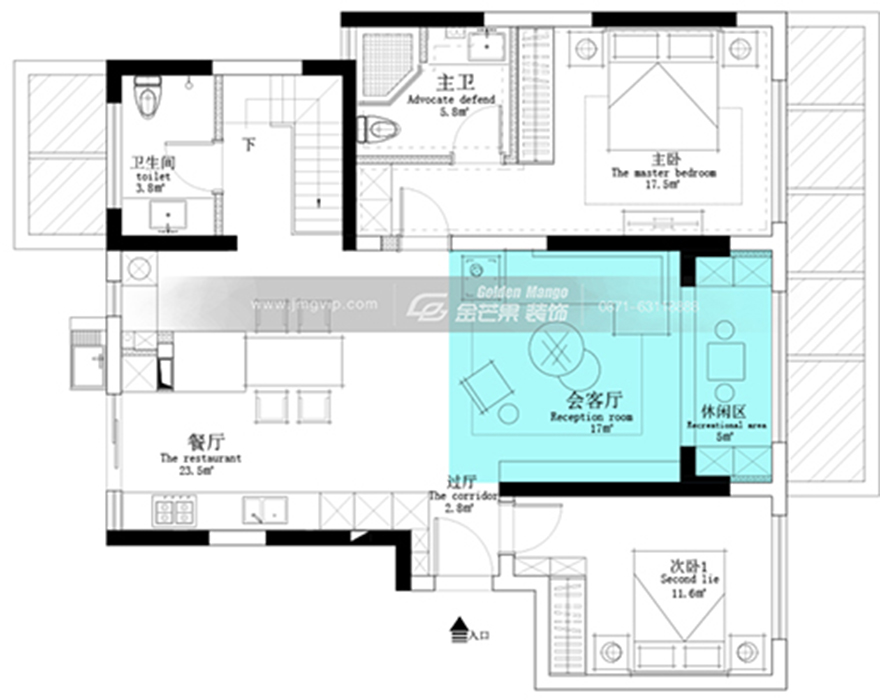
戶型圖

客廳
淺胡桃色為主的整體空間,
展現舒適、純粹的動人田園畫卷。

木頭的原有質感被更大程度的保留,
布藝沙發坐感舒適,
看似簡單的單品,
搭配起來卻恰到好處的展現自然純粹的感覺。

開放式的廚房,
讓空間靈動性、功能性更強。
一邊是人間煙火,
一邊是詩意田園。
廚房

黑與白的純凈在此得以呈現,
精致、潔凈的用餐空間,
幾粒麥谷,嘗盡人間百味。
書房

端莊典雅,書香怡然,
使人靜氣凝神,丟卻浮躁。
陶藝、瓷器、書卷、筆架、臉譜、山水畫,
一縷書香,一段古韻,自在逍遙。

樹枝的擺件,
帶來山間的一縷清風,
煢煢孑立,淡然清逸。


圓形的吊燈,
帶有獨特的空靈和自在,
增添閑適和慵懶。
會客休閑區

石頭和水泥的材質,
頗具野性之美,
為整個空間增色不少。
靜坐期間,
沏上一壺茗茶,茶香悠然,
讓人仿佛置身于天地,
身心盡得舒展。
臥室
溫柔的、純凈的白色,
洗滌凡塵的喧囂,
帶來純凈的愜意。


紗質的窗簾給予肌膚親切的撫慰,
閉上眼,身邊的一切似乎都若有若無了,
仿佛化身為一片輕盈的羽毛,徜徉于天地之間。
陽光將空間分為兩塊,
將美美的日光浴帶到家里,在家里享受度假的感覺。

綠植和原木的搭配相得益彰,
一幅畫、一盞燈,
空間層次感突出但卻不失簡約之美。


