案例賞析丨極簡主義—家居設計中最樸素的力量
設計的魅力是什么?
打破人們對日常生活的想象。

極簡主義設計,
“少即是多”的設計黃金法則,
是生活中一種必要的“斷舍離”,

簡而不減,純粹又高級。
似是三、兩筆勾勒的空間,
實則蘊含生活的大智慧,
極簡的設計會讓你無從抗拒。
極簡主義設計,可以說是在給生活做簡法,將繁雜無用的東西剔除;也可以說是在做加法,因為正是因為剔除了無用的東西,只留下必須的功能及最合適的展現方式,創造簡單到極致的氣質家居。
生活節奏在加快,人們哪怕心里不愿意,也會被時代的滾滾洪流推著往前跑,而正是這種快節奏的生活讓人們選擇了極簡主義,極簡主義的流行,是偶然也是必然。
極簡主義丨低調高級,舒適小資
精致而優雅的生活美學
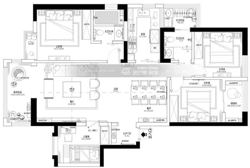
案例小區:時代俊園
建筑面積:143m²
建筑風格:現代極簡
設計師:巖莊扁

戶型圖

圖 賞


極簡主義室內設計非常重視各種材料與色調的選取和運用,這個作品,通過黑、白、灰等低奢色系的運用,營造一種沉靜質樸又精致時尚的氛圍,讓空間充滿質感,體現生活的沉淀,同時兼顧藝術和品味,為業主打造舒適又高級的小資生活。

白——平靜、簡約的力量
純白的沙發和電視背景墻,相互呼應的搭配下,留給業主一片純粹和遐想的空間,在這個喧囂的時代下,白色總是能給人帶來一種放松、簡單的溫馨感。

沙發背景墻的顏色,為整體空間增添了一些奢華和沉穩,避免黑白灰的過渡運用產生一種虛浮和冰冷感。木色電視背景墻和沙發背景墻呼應,是自然質樸與輕奢藝術的對話。
簡約茶幾燈飾,彰顯個性,簡約時尚的單品為極簡主義的空間增色不少。


在一個空間中,隔斷和擺設越多,對生活的束縛也就越大,客廳和餐廳區域,由灰色進行銜接和過渡,又地毯和地板作為區隔,增加房間靈動性和煙火氣,同時又營造開闊的感覺。
餐廳

線條,輪廓分明勾勒空間感
硬朗、冷峻的直線條,力求從視角上彰顯簡約、純粹、高雅、時尚的力量。90°直線條造型在極簡主義風格家居中經常會被用到。
直線條的木質餐桌椅和曲線的餐凳,增加功能性的同時,極富個性,體現設計師的巧思。
陽臺

溫柔的白色窗簾給予心靈親切的撫慰,剔除繁雜,簡約的黑色線條帶來利落、簡練的氣質空間,綠植的清新自然和極簡的純粹不謀而合,自由、灑脫的極簡主義生活總是能給人寧靜、舒適、自由、灑脫之感。
玄關

墻上的裝飾使入門出的點睛之筆,三色層疊拼接,點亮整體空間,充滿造型感,和柜體搭配營造精致、時尚的感覺。


