海倫國際103m2北歐風丨柔柔的黃色主題,填滿一家三口溫暖的小時光
今天給大家介紹的裝修實景案例,業主是幸福的一家三口,一套不大不小的三居室。相對于各種高大上的裝修,這間屋子的生活氣息更顯濃厚。
柔柔的黃,暖暖的家,一個可愛的“小棉襖”,歲月靜好,這便是幸福的模樣。

項目樓盤:海倫國際
項目面積:103m²
設計風格:北歐風格
設計師:巖莊扁
項目經理:朱瑜

設計理念:
以暖黃色為基調,空間部分加入鮮艷的小色調,讓整個空間更加活潑。家,不僅是身體歇息的居所,更是精神靈魂的歸屬。
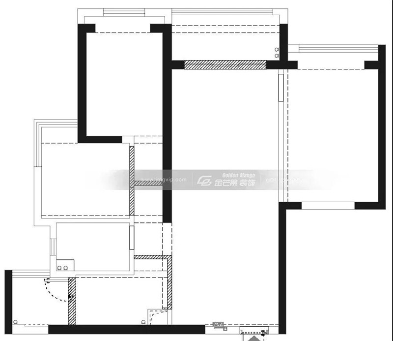
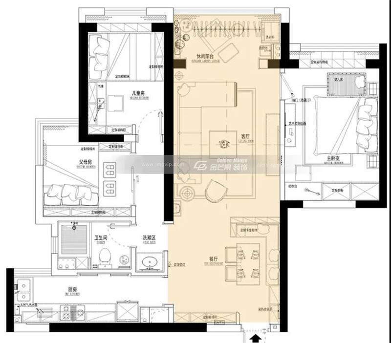
平面布置

改造前

改造后
1、業主希望儲物空間要多一些,公共區域空間大,可以滿足一家人互動的需求。基于此需求,設計師將客廳、餐廳、活動區相整合,使各個區域功能相互聯系,使用起來方便許多,視覺上也具有寬敞明亮的效果。
2、廚房打通,增大廚房空間;將原廚房位置的放冰箱處墻體拆除,更多空間留給干濕分離的衛生間,有利于衛生間功能互不干擾,增加衛生間濕區空間使用。
入戶

全屋以黃色為基調,明媚的黃色總是能帶給人溫暖、溫馨的感覺,意在為業主一家打造其樂融融的家居氛圍。


入戶兩組柜體,一組玄關立柜,進出門的包包、圍巾、鑰匙都有了歸置之處,不刻意追求顏色,但家的感覺又自然而然的顯現出來。一組餐邊柜,定制卡座柜體,方便老人和小孩入座,且大大增加了房屋的收納空間。


糖果色的餐桌椅,搭配上鉆石樣的燈飾,讓食物也多了些可愛的顏色。暖黃的燈光投射下來,食物也變得更有食欲,讓人胃口大開。
客廳
客廳全屋鋪設木地板,帶給人溫馨舒適的溫厚感,營造輕松、自由的家居氛圍。木材還原本真,帶來大自然般的純然感。

明黃色的皮質沙發,呼應電視墻,前進色系讓置身其間的業主有被包圍的溫馨感。各自忙碌了一天之后,一家三口圍坐在電視機前,選一個喜歡的電視節目,享受愜意、其樂融融的家居氛圍。

文化磚做電視背景墻,仿原始建材的風格和全屋的木材形成空間的呼應。兩邊明黃色的墻面讓視覺有了重心,層次感更佳,其中隱藏的一道隱形門讓空間不會顯得突兀。

客廳選用的是很簡單的小茶幾,輕易就可以搬開,為孩子騰出一塊自由活動的天地。不管是畫畫、還是搭積木,都是很好的親子互動的空間。可愛的卡通地毯,滿足孩子的童真,也讓父母可以像孩子的朋友般,和孩子更親昵。


廚房
可愛的廚房也少不了卡通元素的加持,印有卡通圖案的地毯在業主家里隨處可見,往往就是這些看似簡單的小細節,將生活裝點得五顏六色。

粉色的地磚,可愛的廚房,用美好的心情,烹飪一桌美味,享受屬于一家人小“食”光。

浴室

彩色的墻磚,五彩斑斕的顏色和整個家明媚、可愛的格調相配合,呈現輕松、愉快的家居氛圍。在家里,不管是爸爸媽媽還是孩子,都可以肆無忌憚,一起做純真的小可愛。

涂鴉過道
在門上和過道上繪制可愛的卡通圖案、貼紙,留言涂鴉墻不浪費過道空間,增加趣味性。

這里也是業主家寶貝非常喜歡的一個地方。家長可以與孩子一起涂畫或是寫上備忘、留言,提高功能性的同時也更加富有童趣,增進家人之間的交流、溝通。

不一定要整齊劃一,這樣富有想象力的畫作,也是平淡日子里的小幸福。



